Lejligheden ligger i Vissingsgade – en rolig sidegade til gågaden – med kort afstand til butikker, banegården og uddannelsesinstitutioner.
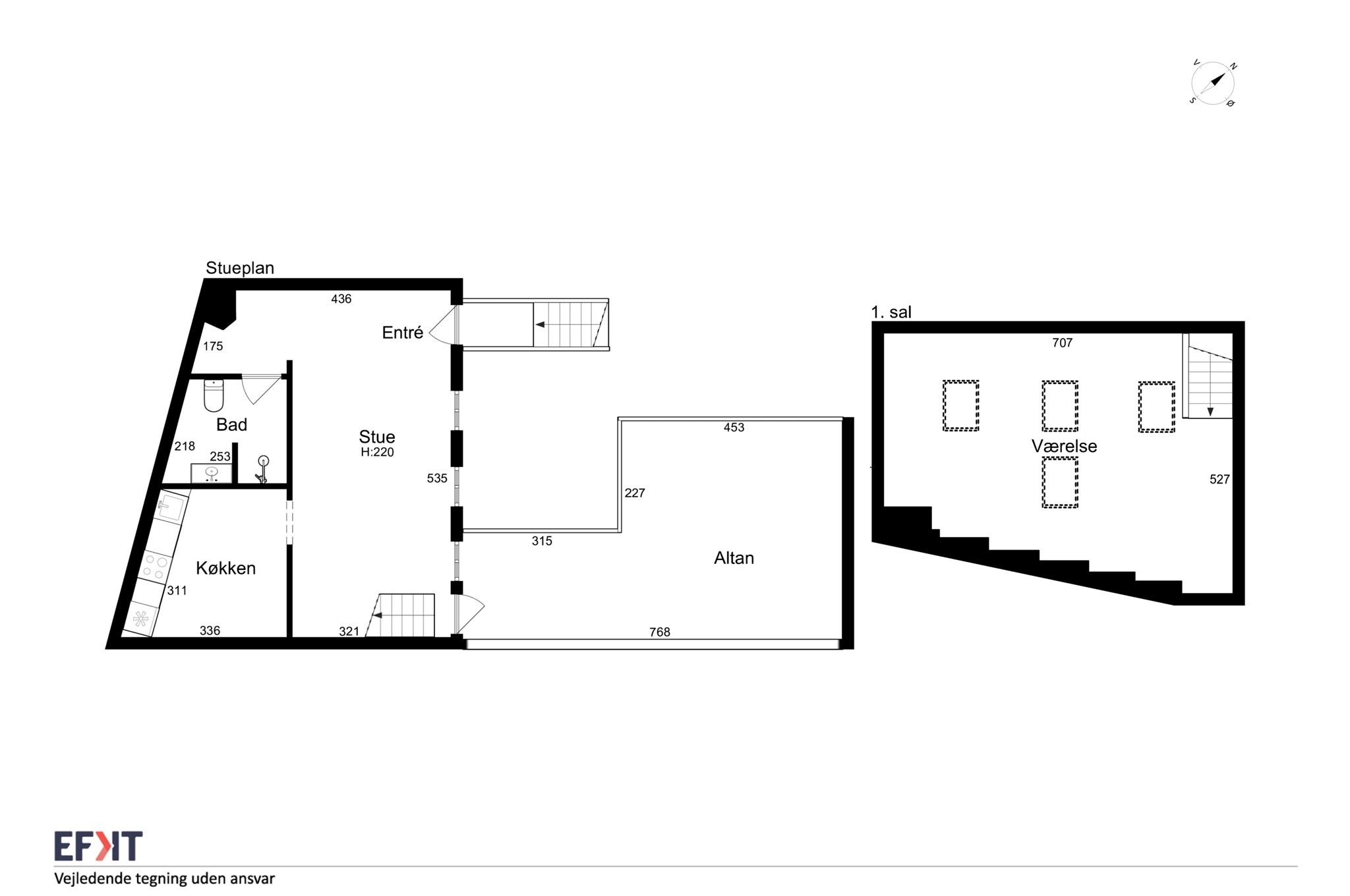
Boligen byder på et lyst badeværelse med bruseniche, et lyst køkken, en rummelig stue med udgang til en stor terrasse samt et soveværelse med hyggelige skråvægge, der giver ekstra charme.
I ejendommen er der et velfungerende fællesvaskeri, som nemt bookes online. Har du bil, er der mulighed for at leje privat parkeringsplads i baggården få meter fra boligen (kr. 400 pr. måned).



















